Zinshaus/Renditeobjekt, Kauf, Greifswald
Rügen Immobilienmakler
Kapitalanleger! Schönes Objekt mit zwei gut vermieteten Einheiten

Kapitalanleger! Schönes Objekt mit zwei gut vermieteten Einheiten

Objektbeschreibung

Zum Verkauf steht ab sofort dieses schöne und große Objekt mit zwei gut vermieteten Einheiten am Rande der Universitäts- und Hansestadt Greifswald.



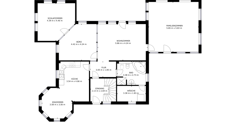
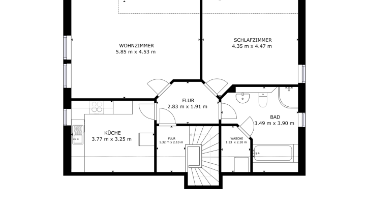
Auf einer Gesamtfläche von 223,91 m² bietet dieses im Fachwerk-Stil erbaute Haus viele Nutzungsmöglichkeiten.



Derzeit ist das Objekt an zwei Parteien, jeweils im Erdgeschoss und im Obergeschoss, vermietet. Die beiden Bereiche sind durch den Eingangsbereich und die dortige, nach oben führende Treppe erreichbar. Die Nettokaltmiete beträgt derzeit 8,49 €/m², was eine solide Rendite verspricht und zukünftig ausbaufähig ist.



Der Wohnbereich im Obergeschoss ist vollständig kürzlich vollständig saniert und ist ausgestattet mit einer modernen Küche, einem Dusch-/Wannenbad, einem Wohn- und einem Schlafzimmer.



Das Erdgeschoss besticht durch seine großen und offenen Räume. An die großzügige Küche schließt sich praktischer Weise direkt ein Esszimmer an. Das Badezimmer verfügt über eine Badewanne und eine Dusche. Des Weiteren befinden sich hier ein Büro, ein Schlafzimmer und zwei große Wohnräume.



Die südwestlich ausgerichteten Terrasse öffnet den Blick über das insgesamt 1120 m² große Grundstück, das im Gartenbereich von Sträuchern und Bäumen umgeben und so nicht von den Nachbargrundstücken einsehbar ist. Der Grundstücksbereich vor dem Objekt ist gepflastert und bietet Parkmöglichkeiten. Zusätzlich befindet sich an der Westseite ein Carport und an der Nordseite ein kleines Gebäude für Gartengeräte und Fahrräder.



Fazit: Ein Anlageobjekt, dass mit soliden Mieteinnahmen ein gutes Investment verspricht.

Lage

Weitenhagen ist eine Gemeinde im Norden des Landkreises Vorpommern-Greifswald. Die Gemeinde liegt nur etwa 6km südlich der Universitäts- und Hansestadt Greifswald. Sie ist durch die Nähe zur Stadt Greifswald und die landschaftlich reizvolle Lage sehr beliebt.

Sonstiges

Wir bitten um Verständnis, dass wir nur vollständige, schriftliche Anfragen (E-Mail) mit Namen, Anschrift und Telefonnummer beantworten können. Gern stehen wir Ihnen auch zu einer persönlichen Beratung im Bereich Baufinanzierung & Immobilienkauf zur Verfügung.





HAFTUNGSAUSSCHLUSS - Alle Angaben sind ohne Gewähr und basieren ausschließlich auf Informationen, die uns von unserem Auftraggeber zur Verfügung gestellt wurden. Wir übernehmen keine Gewähr für die Vollständigkeit, Richtigkeit und Aktualität dieser Angaben.

529.000 €

Kaufpreis

223,91 m²

Gesamtfläche

1.120 m²

Grundstücksfläche

Adresse

17489 Greifswald

Preise & Kosten

Freitext Courtage
Der Maklervertrag mit uns kommt durch die Bestätigung der Inanspruchnahme unserer Maklertätigkeit zustande. Die Höhe der Courtage richtet sich nach den ab dem 23.12.2020 in Kraft getretenen, gesetzlichen Regelungen zur Teilung der Maklercourtage. So wird die Courtage für beide Parteien (Eigentümer und Käufer) jeweils 3,57 % auf den Kaufpreis inklusive der gesetzlichen Umsatzsteuer betragen und ist bei notariellem Vertragsabschluss verdient und fällig.
Kaufpreis
529.000 €
Kaufpreis pro Fläche
2.495,28 € (m²)

Angaben zur Immobilie

Objektart
Zinshaus/Renditeobjekt
Wohnfläche
212 m²
Gesamtfläche
223,91 m²
Grundstücksfläche
1.120 m²
Zimmer
6
Badezimmer
2
Anzahl Stellplätze
4
vermietbare Fläche
212 m²
Anzahl Wohneinheiten
2
Balkone
1
Baujahr
2010
Zustand des Objektes
Neuwertig
Objekt ist vermietet

Ausstattung

Differenzierung
Standard
Küche
Einbauküche
Boden
Fliesen, Laminat
Heizungsart
Zentralheizung
Befeuerung
Gas
Stellplatzart
Garage, Carport
Abstellraum

Ausstattung:

Wohnfläche: ca. 212 m²

Grundstücksgröße: ca. 1120 m²

Zimmer: 6

Badezimmer: 2

Baujahr: 2010

Gepflegter Zustand

Terrasse und Garten

Parkmöglichkeiten: Carport & Außenstellplätze

Anbieter

Immodock - Sndg. Media GbR

18439 Stralsund

Telefon03831 2257538Anzeigen
E-MailDiese E-Mail-Adresse ist vor Spambots geschützt! Zur Anzeige muss JavaScript eingeschaltet sein.Anzeigen

Bilder

Kapitalanleger! Schönes Objekt mit zwei gut vermieteten Einheiten
Kapitalanleger! Schönes Objekt mit zwei gut vermieteten Einheiten
Kapitalanleger! Schönes Objekt mit zwei gut vermieteten Einheiten
Kapitalanleger! Schönes Objekt mit zwei gut vermieteten Einheiten
Kapitalanleger! Schönes Objekt mit zwei gut vermieteten Einheiten
Kapitalanleger! Schönes Objekt mit zwei gut vermieteten Einheiten
Kapitalanleger! Schönes Objekt mit zwei gut vermieteten Einheiten
Kapitalanleger! Schönes Objekt mit zwei gut vermieteten Einheiten
Kapitalanleger! Schönes Objekt mit zwei gut vermieteten Einheiten
Kapitalanleger! Schönes Objekt mit zwei gut vermieteten Einheiten
Kapitalanleger! Schönes Objekt mit zwei gut vermieteten Einheiten
Kapitalanleger! Schönes Objekt mit zwei gut vermieteten Einheiten
Kapitalanleger! Schönes Objekt mit zwei gut vermieteten Einheiten
Kapitalanleger! Schönes Objekt mit zwei gut vermieteten Einheiten
Kapitalanleger! Schönes Objekt mit zwei gut vermieteten Einheiten
Kapitalanleger! Schönes Objekt mit zwei gut vermieteten Einheiten
Kapitalanleger! Schönes Objekt mit zwei gut vermieteten Einheiten
Kapitalanleger! Schönes Objekt mit zwei gut vermieteten Einheiten
Kapitalanleger! Schönes Objekt mit zwei gut vermieteten Einheiten
Kapitalanleger! Schönes Objekt mit zwei gut vermieteten Einheiten
Kapitalanleger! Schönes Objekt mit zwei gut vermieteten Einheiten
Kapitalanleger! Schönes Objekt mit zwei gut vermieteten Einheiten
Kapitalanleger! Schönes Objekt mit zwei gut vermieteten Einheiten
Kapitalanleger! Schönes Objekt mit zwei gut vermieteten Einheiten