Skip to main content

Modernes Einfamilienhaus in schöner Lage

Keyfacts

  • Kaufpreis: 285.000 EUR (Mindestgebot - Bieterverfahren)

  • Provision: 3,57 % inkl. MwSt.

  • Haustyp: Einfamilienhaus

  • Wohnfläche: ca. 94 m²

  • Grundstücksfläche: ca.  312 m²

  • Objektzustand: Erstbezug

  • Balkon / Terrasse: ja
  • Keller: Nein
  • Einbauküche: Nein
  • Zimmer: 4
  • Badezimmer: 2

  • Schlafzimmer: 3

  • Baujahr: 2020

  • Verfügbar ab: Sofort

Objektbeschreibung

Im Norden der Insel Rügen, in Sassnitz, auf der Halbinsel Jasmund, steht ab sofort dieses neu erbaute Einfamilienhaus zum Verkauf.

Das moderne Haus mit einer Gesamtwohnfläche von 94,56 qm wurde im Jahr 2020 fertig gestellt. Mit seinen klaren Formen und der hellen,  offenen Grundrissgestaltung erfüllt diese Immobilie sicherlich alle Ansprüche an ein zeitgemäßes Wohnerlebnis.

So finden Sie nach Betreten des Hauses zur linken Seite den Raum für die Haustechnik. Zur rechten Seite betreten Sie die Küche, die sich zum offenen und hellen Wohn- und Essbereich, mit seinen großen bodentiefen Fensterelementen öffnet.

Des Weiteren befindet sich im Erdgeschoss ein Badezimmer, das mit modernen und pflegeleichten Fliesen ausgestattet ist und über eine ebenerdige Dusche, ein WC, ein Waschbecken, einen Platz für die Waschmaschine und eine großzügige Handtuchheizung verfügt. Außerdem gibt es ein weiteres Zimmer, das gut als Schlaf- oder Arbeitszimmer genutzt werden kann.

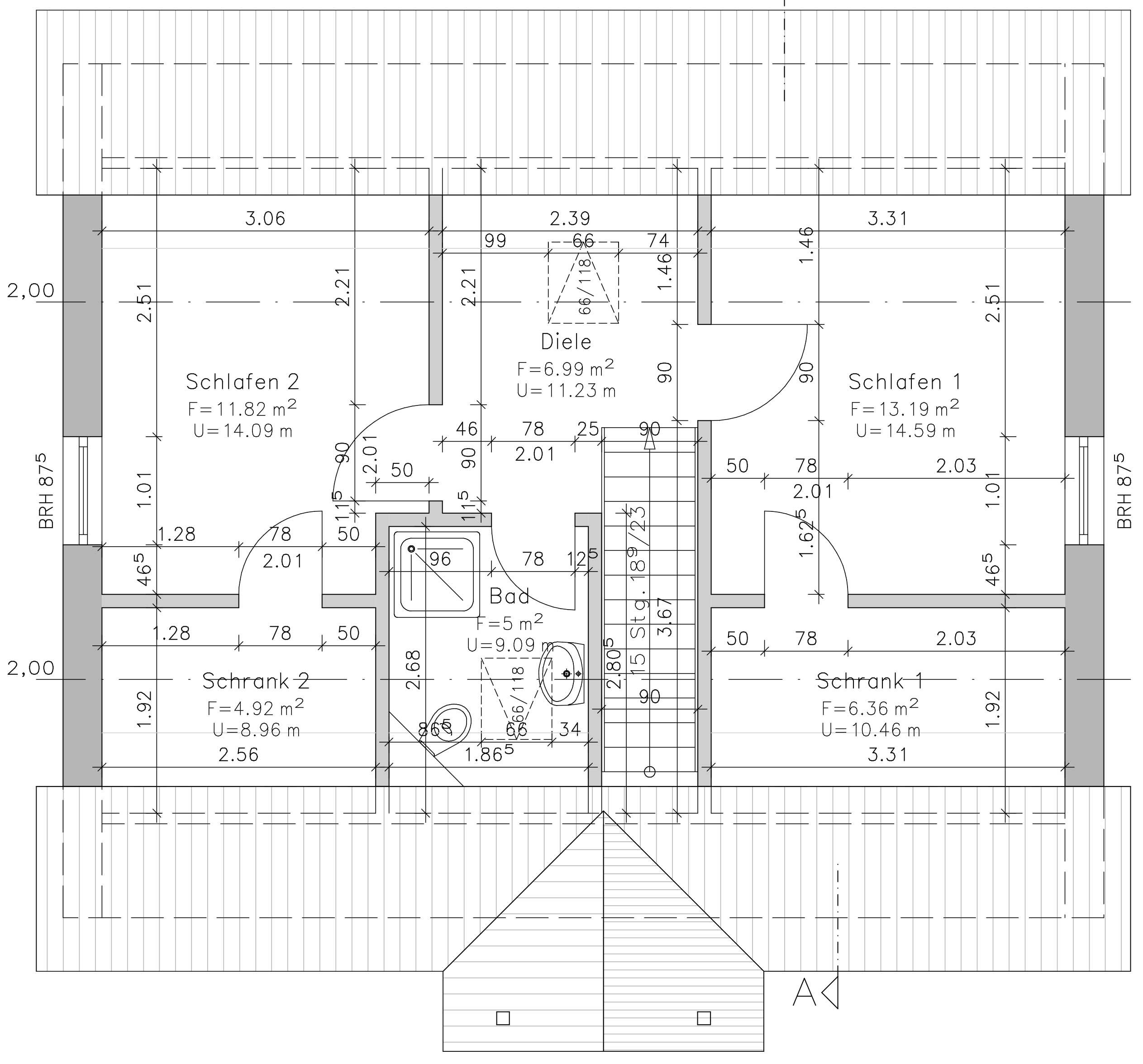
Im Obergeschoss dieser Immobilie findet sich ein weiteres Bad, das über eine Toilette und einen Waschplatz verfügt und zwei helle Zimmer mit bodentiefen Fenstern und offengelegten Deckenbalken, die für eine natürliche Wohlfühlatmosphäre sorgen.

Alle Fenster des modernen Hauses verfügen über elektrische Rollläden. Das gesamte Haus wird durch Luftwärmepumpe in Verbindung mit einer Fußbodenheizung beheizt und lässt so, durch fehlende Heizkörper viele Stellflächen zur Möblierung frei. Der Erbauer des charmanten Hauses hat sich bewusst gegen die Verlegung eines Fußbodenbelages in den Wohn- und Schlafräumen entschieden, um den Erwerbern Freiraum für eine individuelle Innengestaltung zu geben. Das 312 qm große Grundstück wurde ebenfalls nur sporadisch angelegt, um den persönlichen Präferenzen etwaigen Käufern in Bezug auf Bepflanzung oder Einfriedung nicht im Wege zu stehen.

Bitte beachten Sie, dass es sich bei dem ausgewiesenen Angebotspreis von 285.000,- € um die Mindestkaufpreisvorstellung (Bieterverfahren), des Veräußerers handelt.

Virtuelle Rundgänge

Drohnenaufnahmen

Grundrisse

Erdgeschoss
Obergeschoss

Lage

Die Stadt Sassnitz ist ein staatlich anerkannter Erholungsort an der Ostsee. Sie liegt auf der Halbinsel Jasmund im Nordosten der Insel Rügen und gehört zum Landkreis Vorpommern-Rügen in Mecklenburg-Vorpommern (Deutschland).

Sassnitz erhielt 2012 den UNESCO-Weltnaturerbe-Titel für die reichhaltigen Buchenurwälder im Nationalpark Jasmund. Nordöstlich an die Kernstadt angrenzend beginnt die Kreideküste mit der Stubbenkammer und dem Königsstuhl. Zudem ist Sassnitz für seine Bäderarchitektur im Kurviertel sowie für den Fährhafen Sassnitz im südlichen Ortsteil Mukran bekannt.

In Sassnitz befinden sich alle infrastrukturellen Angebote des täglichen Lebens, wie Supermärkte, Ärzte, Krankenhaus, Schulen, Kindergärten, etc.

Sonstiges

Der Makler-Vertrag mit uns kommt durch die Bestätigung der Inanspruchnahme unserer Maklertätigkeit zustande. Die Höhe der Courtage richtet sich nach den ab dem 23.12.2020 in Kraft getretenen gesetzlichen Regelungen zur Teilung der Maklercourtage. So wird die Courtage für beide Parteien (Eigentümer und Käufer) jeweils 3,57 % auf den Kaufpreis inklusive der gesetzlichen Umsatzsteuer betragen und ist bei notariellem Vertragsabschluss verdient und fällig.

Wir bitten um Verständnis, dass wir nur vollständige, schriftliche Anfragen (E-Mail, FAX, Brief) mit Namen, Anschrift und Telefonnummer beantworten können. Gern stehen wir Ihnen auch zu einer persönlichen Beratung im Bereich Baufinanzierung & Immobilienkauf zur Verfügung.

HAFTUNGSAUSSCHLUSS - Alle Angaben sind ohne Gewähr und basieren ausschließlich auf Informationen, die uns von unserem Auftraggeber zur Verfügung gestellt wurden. Wir übernehmen keine Gewähr für die Vollständigkeit, Richtigkeit und Aktualität dieser Angaben.

Kontakt

Name *
Vorname: *
Straße: *
PLZ/Ort: *
Telefon *
E-Mail: *
Kontaktaufnahme:
Datenschutzbestimmung *
Ja, ich habe die Datenschutzerklärung zur Kenntnis genommen und bin damit einverstanden, dass die von mir angegebenen Daten elektronisch erhoben und gespeichert werden.Meine Daten werden dabei nur streng zweckgebunden zur Bearbeitung und Beantwortung meiner Anfrage benutzt. Mit dem Absenden des Kontaktformulars erkläre ich mich mit der Verarbeitung einverstanden.

Christian Reuter
Immobilienmakler

Hafenstraße 17
18546 Sassnitz

E-Mail: Diese E-Mail-Adresse ist vor Spambots geschützt! Zur Anzeige muss JavaScript eingeschaltet sein.
Tel: 0163 - 880 14 00