Lage
Sassnitz ist die zweitgrößte Stadt auf der Insel Rügen und liegt im Nordosten der Insel Rügen, dem Nationalpark Jasmund zu Füßen. Die direkte Nähe zu den weitläufigen Buchenwäldern, der bezaubernden Kreideküste und der blauen Ostsee zieht Jahr um Jahr viele naturbegeisterte Besucher in die Hafenstadt. Im Fischerei- und Seglerhafen mit seiner 1450 m langen Außenmole können Sie Ausflüge mit einem der vielen Fahrgastschiffe buchen und bis zum Königstuhl fahren. Gerade an sonnigen Tagen ist das ein tolles Erlebnis für die gesamte Familie. Sassnitz verfügt über diverse Supermärkte und Geschäfte, die in den Sommermonaten auch am Wochenende geöffnet haben. Diverse touristische Ausflugsziele, wie z. B. den Königstuhl oder das Naturerbezentrum in Prora erreichen Sie bequem mit dem Auto oder Fahrrad. Tolle Badestrände finden Sie entweder in Prora oder in Glowe. In kurzer Entfernung und unmittelbarer Umgebung des Hauses finden Sie Schulen, Ärzte, Tankstellen, diverse Supermärkte und Geschäfte des täglichen Bedarfs.
Objektbeschreibung
Diese attraktive Eigentumswohnung befindet sich im 2. Obergeschoss eines gepflegten Mehrfamilienhauses in zentraler Lage von Sassnitz – nur wenige Minuten vom Hafen, der Promenade und den Einkaufsmöglichkeiten des täglichen Bedarfs entfernt.
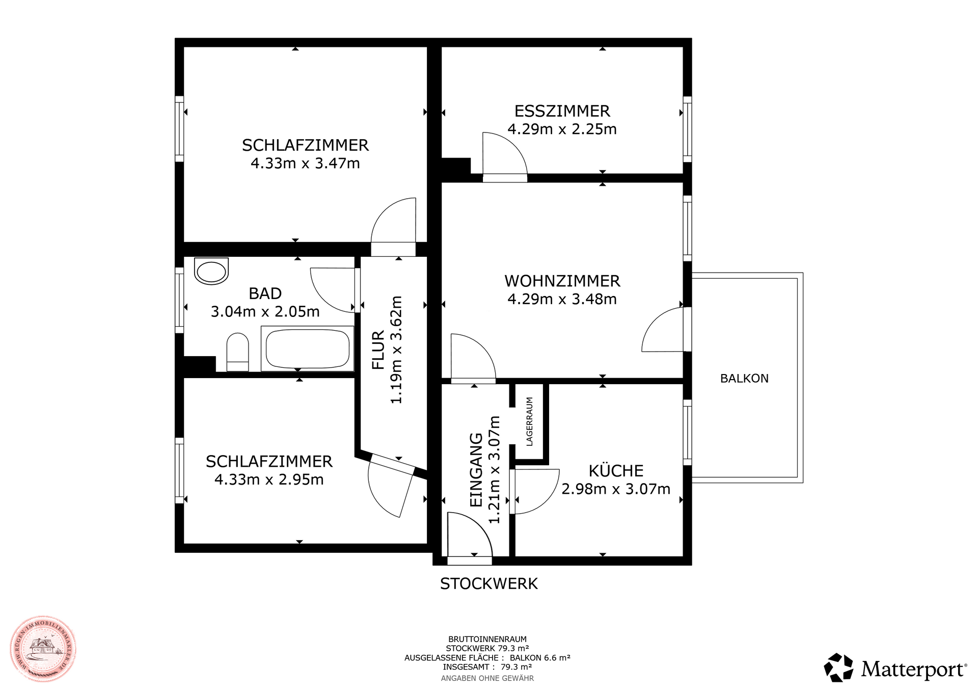
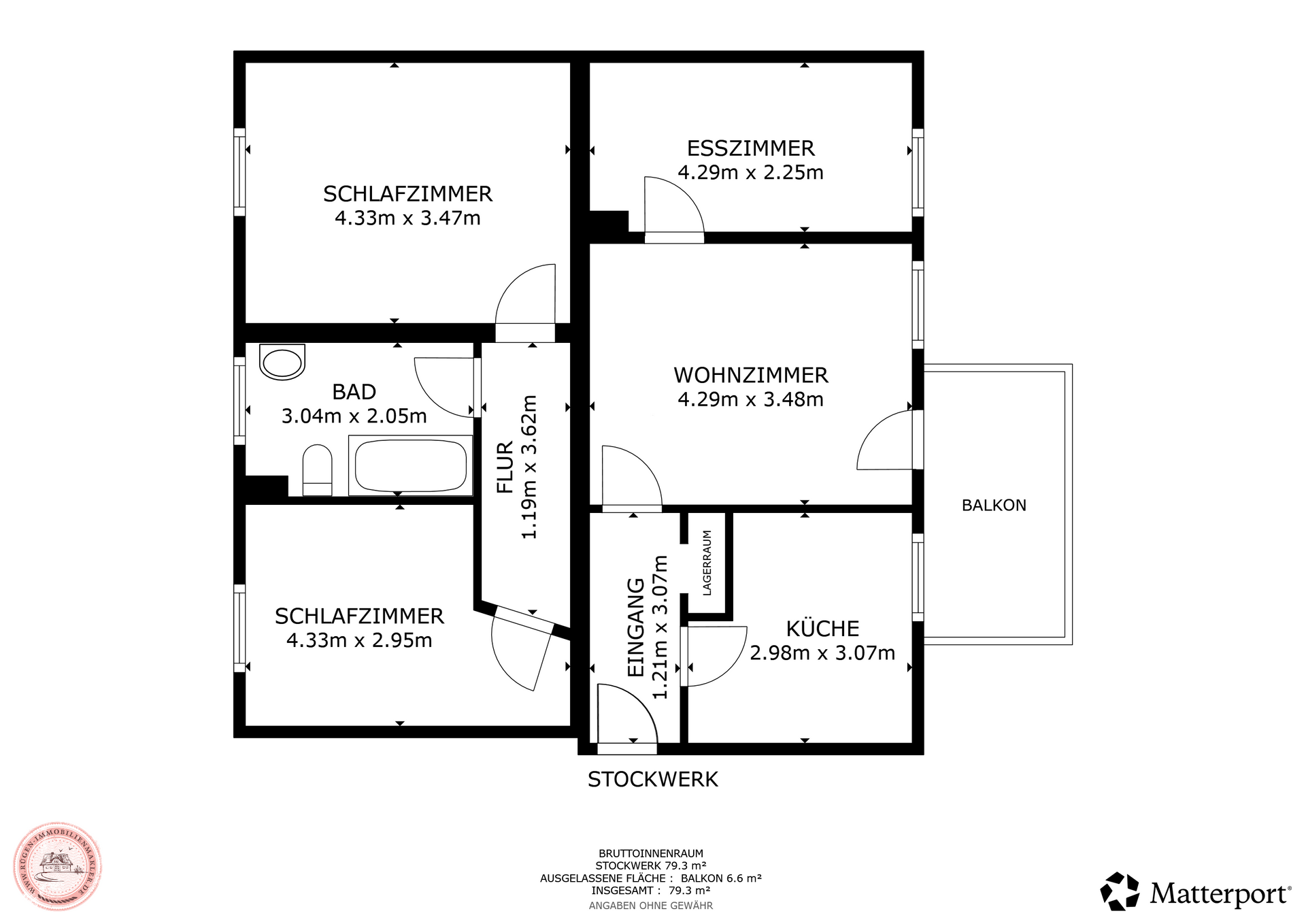
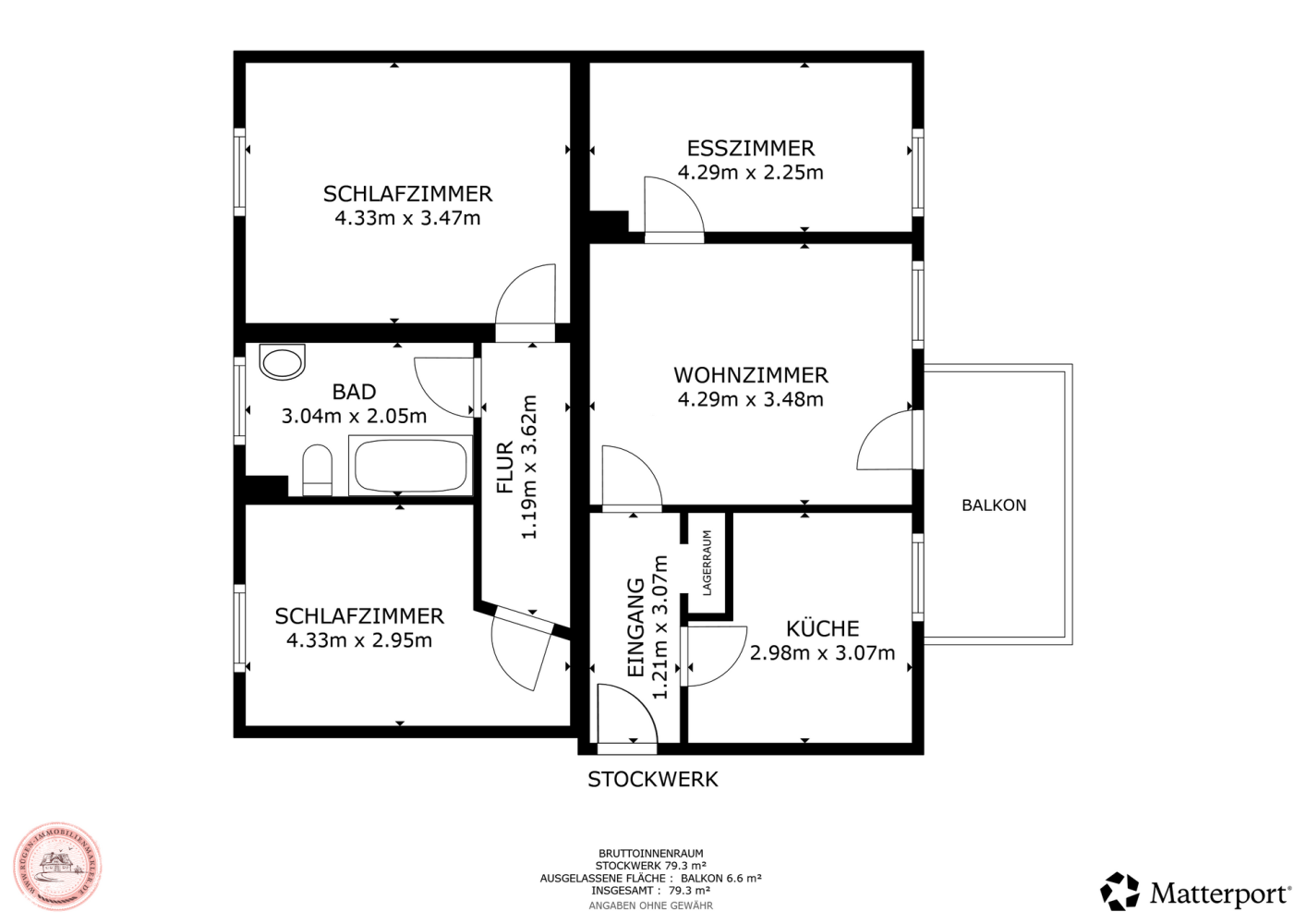
Auf ca. 76 m² Wohnfläche bietet die Wohnung eine durchdachte Raumaufteilung mit drei Schlafzimmern, einem Wohnzimmer mit Zugang zum Balkon, einer separaten Küche, einem Flur sowie einem Badezimmer mit Badewanne.
Die Wohnung ist bezugsfrei und eignet sich sowohl zur Eigennutzung als auch als attraktive Kapitalanlage in einer beliebten Wohn- und Ferienregion auf der Insel Rügen.
Ein Kellerraum bietet zusätzlichen Stauraum, und ein Pkw-Stellplatz gehört selbstverständlich zur Wohnung.
Dank der zentralen Lage sind der Stadthafen, Restaurants, Cafés und zahlreiche Freizeitmöglichkeiten bequem zu Fuß erreichbar – ideal für alle, die das maritime Flair von Sassnitz zu schätzen wissen.
Sonstiges
Wir bitten um Verständnis, dass wir nur vollständige, schriftliche Anfragen (E-Mail, FAX, Brief) mit Namen, Anschrift und Telefonnummer beantworten können.